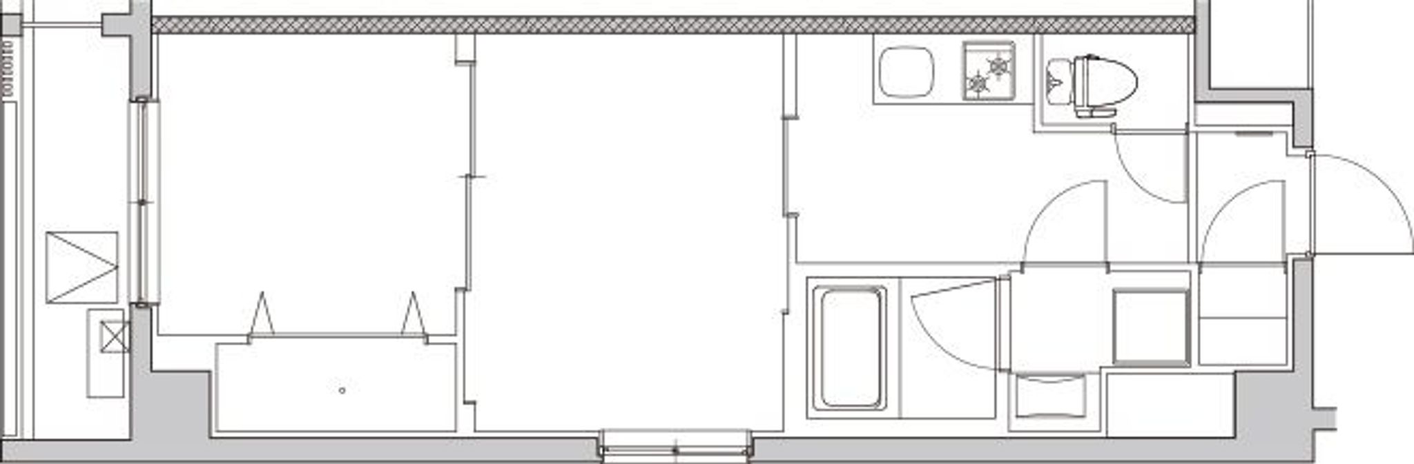
B2
B2タイプ玄関・廊下
B2タイプキッチン
B2タイプトイレ
B2タイプパウダールーム
B2タイプバスルーム
B2タイプ洋室1
B2タイプ洋室2
B2タイプ洋室1+2
B2タイプバルコニー
1/9
B2タイプ玄関・廊下
B2タイプ玄関・廊下
B2タイプキッチン
B2タイプトイレ
B2タイプパウダールーム
B2タイプバスルーム
B2タイプ洋室1
B2タイプ洋室2
B2タイプ洋室1+2
B2タイプバルコニー
Powered by
RICOH360 Tours