13th Floor Layout
13th Floor Layout
13th floor
1300
lobby
breakroom
main1
office3
office2
main4
main7
office4
office6
office7
office8
1301 (unfinish)
5,300sf unfinished
5,300sf build to suit
1/2513th floor
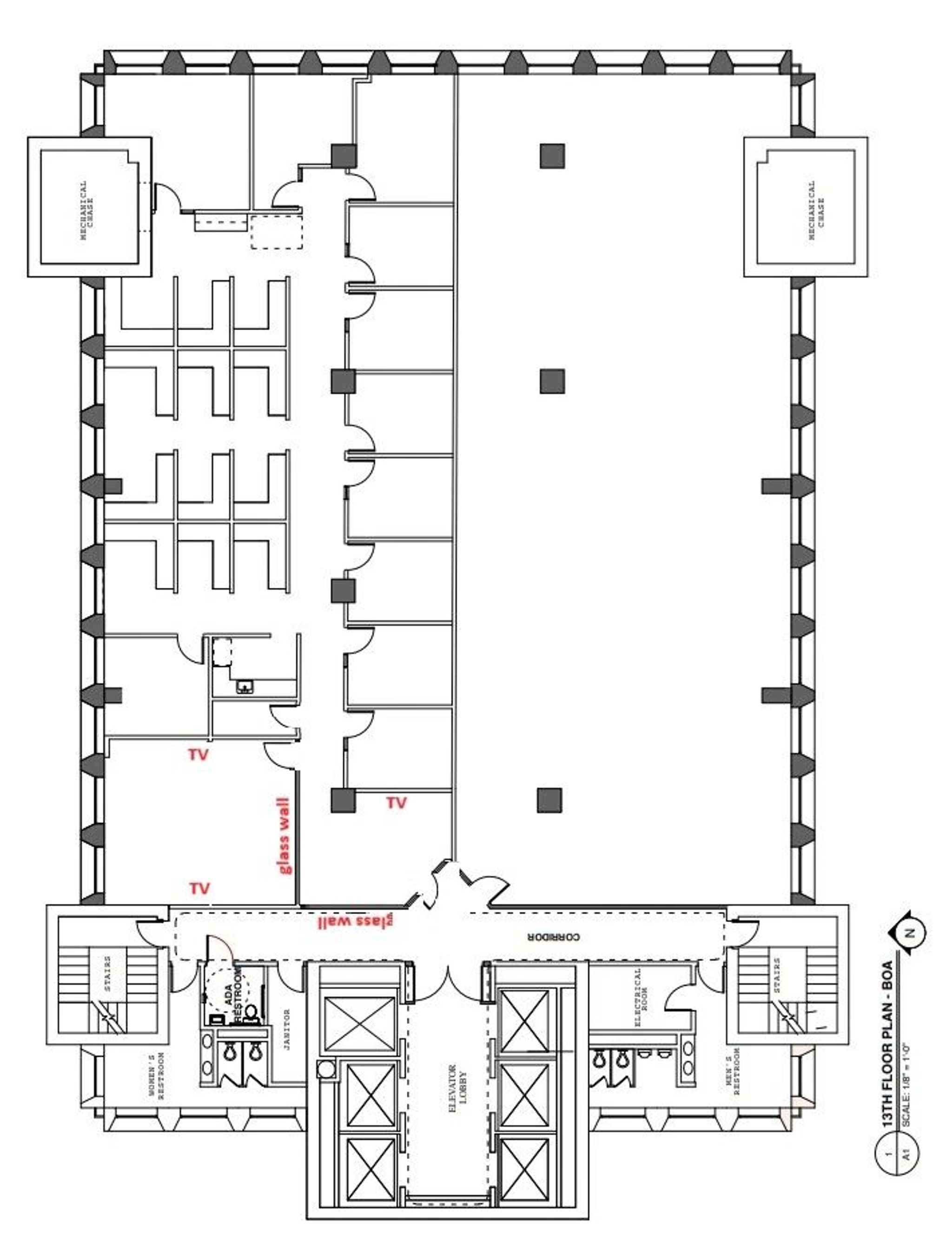
13th Floor 200 WEST200 West Capitol AveLittle Rock, AR 72201

Completely remodeled space suite 1300 (5000sf) & unfinished 1301 (5500sf). 12 private offices, reception area, conference training room w/ beautiful glass wall, and 11 built-in workstations. Exposed ceilings. Next door is unfinished 5500sf. Our rental rates are quoted full service which includes utilities and janitorial. Must see!

Pricen/a
Floor size10500sf
Bedsn/a
Bathsn/a
Year Builtn/a