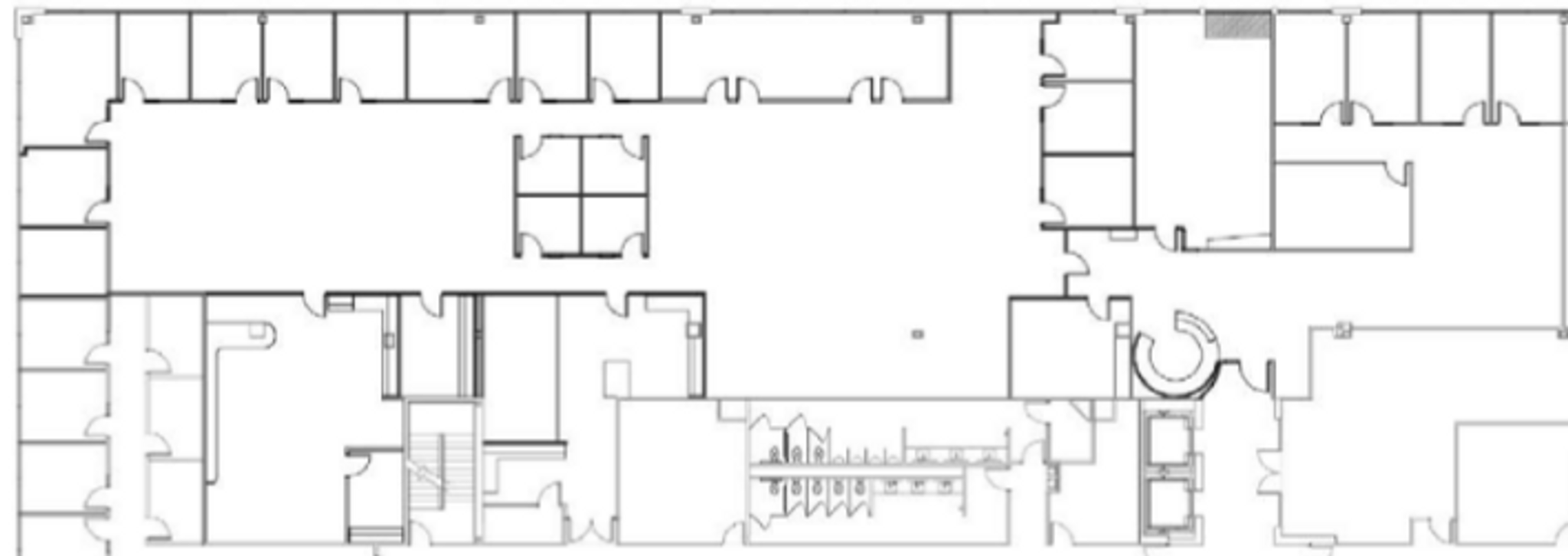
Lakewood on the Park - Ste 200
Lakewood on the Park - Ste 200
Entrance
Lobby
Conf
Hallway
Office
Open Area
Meeting Room
Office
Hallway
Office
Office
Hallway
Office
Office
Hallway
Office
Office
Hallway
Hallway
Hallway
Office
Office
Office
Office
Office
Office
Office
Hallway
Office
Office
Hallway
Kitchen
Hallway
Office
Office
Supplies
Hallway
Hallway
Hallway
Supply room
Office
Office
Office
Office
Office
Hallway
Office
Office
Office
Supplies
Office
Hallway
Hallway
Office
Hallway
1/55Entrance
Lakewood on the Park B - Ste 2007600 N Capital of Texas HwyAustin, TX 78731
Pricen/a
Floor sizen/a
Bedsn/a
Bathsn/a
Year Builtn/a