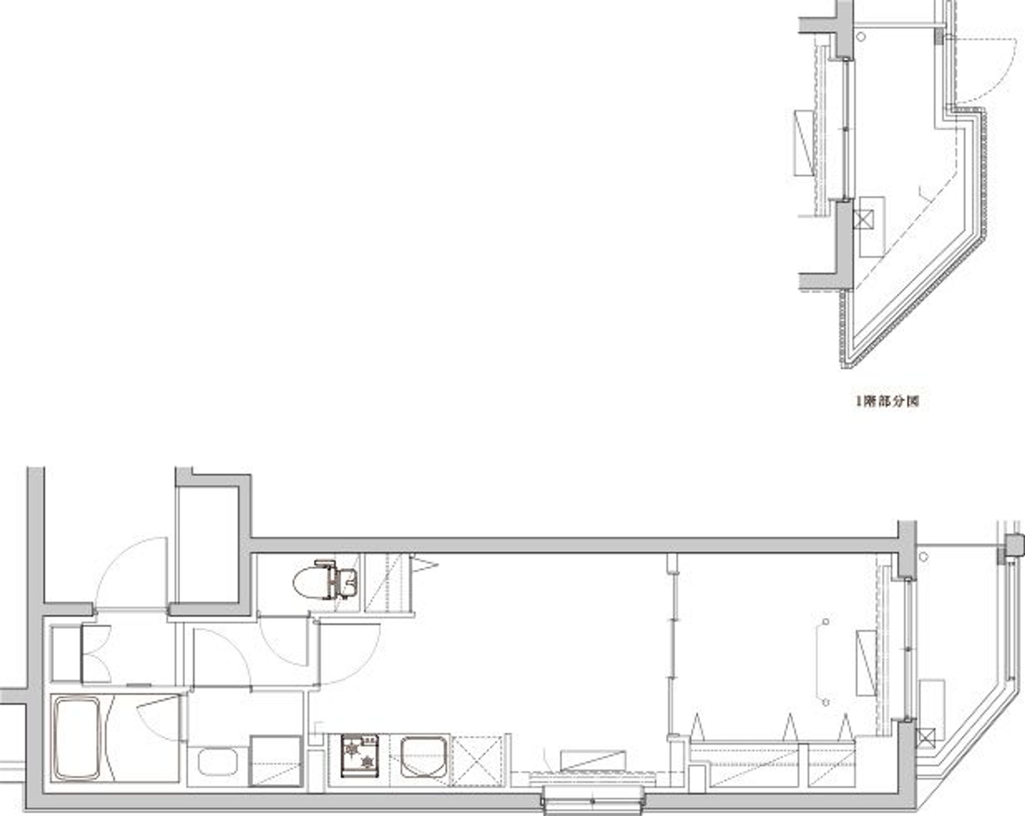
nakanoB
Bタイプ_玄関
Bタイプ_パウダールーム
Bタイプ_バスルーム
Bタイプ_トイレ
Bタイプ_キッチン
Bタイプ_LDK
Bタイプ_洋室
Bタイプ_LDK+洋室
Bタイプ_バルコニー
1/9
Bタイプ_玄関
Bタイプ_玄関
Bタイプ_パウダールーム
Bタイプ_バスルーム
Bタイプ_トイレ
Bタイプ_キッチン
Bタイプ_LDK
Bタイプ_洋室
Bタイプ_LDK+洋室
Bタイプ_バルコニー
Powered by
RICOH360 Tours
アイルグランデ中野ノースドゥーエBタイプ
Price
n/a
Floor size
n/a
Beds
n/a
Baths
n/a
Year Built
n/a