BDX Floorplan 1
BDX Floorplan 1
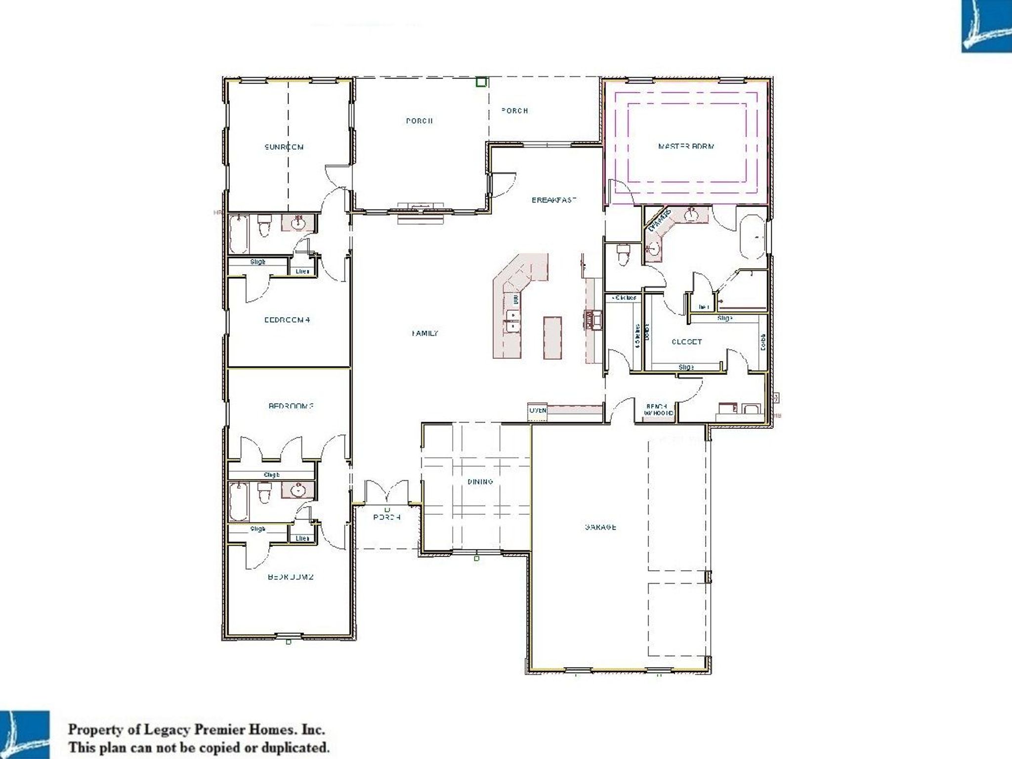
Dining Room
Foyer
Family
Breakfast
Kitchen
Master Bedroom
Master Bath
Master Closet
Kitchen Hall
Bedroom2
Beedroom3
Bedroom4
Sunroom
1/13Family
Wilson Plan A25643 GRAYSON LNDGMadison, Al 35756

All brick Wilson A is an open plan with a 3 car side entry garage backed by a 2-10 home warranty. Home has 4 bedrooms, 3 baths and a sunroom. Home has wood plus flooring (Mohawk Revwood, Engineered Wood or similar product) in all living areas and bedrooms. Great Room features 12' ceiling, 8' tall doorways, extensive trim, gas-log fireplace with upgraded fireplace treatment, floor outlet, recessed lights and ceiling fan. Dining room has 12’ coffered ceiling, extensive trim including shadow box under chair rail. Open Kitchen has 12’ ceilings in kitchen, 8' tall doorways, soft close custom cabinetry and granite countertops, large 45 degree island with bar seating, also has a second prep island, stainless appliances (Gas Cooktop, Cabinet Vent Hood, Wall Oven, Wall Microwave, Dishwasher), tile backsplash, recessed and under cabinet lighting, and huge walk-in pantry. Breakfast has 12’ ceiling and extensive trim. Master bedroom has 11’ double tray ceiling, extensive trim, wood plus flooring, recessed lighting and ceiling fan. Master bath has 11’ ceilings, freestanding tub, corner tile shower with tile bottom, two shower heads and rimless door, separate toilet area, double vanity with granite countertops and huge walk-in closet. Large sunroom has vaulted ceiling and ceiling fan. The additional bedrooms have 9' ceilings, ceiling fans and crown molding. The additional baths have 9' ceilings, tile flooring and granite countertops. Laundry has 9' ceilings, custom cabinet and tile flooring. Dropzone bench by door to garage. Home has large rear covered porch with ceiling fan. The home has a tankless water heater. Home includes fully sodded yard, gutters including piping under sidewalks and attractive landscaping. Builder has a closing cost program. Legacy Grove Subdivision has pool, clubhouse, tennis courts, access to lakes, underground utilities, curb and gutter, street lights, sidewalks, public sewer and a professionally managed HOA.

Pricen/a
Floor size3280
Beds4
Baths3
Year Built2024