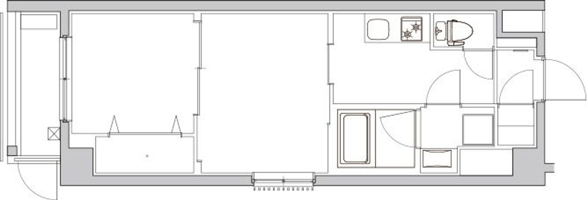
F
Fタイプ玄関・廊下
Fタイプキッチン
Fタイプトイレ
Fタイプパウダールーム
Fタイプバスルーム
Fタイプ洋室1
Fタイプ洋室2
Fタイプ洋室1+2
Fタイプバルコニー
1/9
Fタイプ玄関・廊下
Fタイプ玄関・廊下
Fタイプキッチン
Fタイプトイレ
Fタイプパウダールーム
Fタイプバスルーム
Fタイプ洋室1
Fタイプ洋室2
Fタイプ洋室1+2
Fタイプバルコニー
Powered by
RICOH360 Tours